Fortaleza deve receber obras em 22 áreas e 3 lagoas; veja locais

Intervenções de drenagem e urbanização estão previstas para 13 bairros.

Vista aérea do bairro Sabiaguaba mostra uma ponte totalmente coberta por alagamento. Acima da água, há árvores e algumas residências.
Legenda: Ponte no bairro da Sabiaguaba deve passar por melhorias.
Foto: Seinf/Prefeitura de Fortaleza.

Mais de 20 áreas em 13 bairros de Fortaleza devem ser contempladas com obras de drenagem, pavimentação e urbanização por meio de uma operação de crédito de R$ 250 milhões, firmada entre a Prefeitura de Fortaleza e o Banco Nacional de Desenvolvimento Econômico e Social (BNDES).

O anúncio ocorreu na manhã desta terça-feira (27), no Palácio da Abolição, durante a divulgação de investimentos do BNDES no Ceará. O evento teve a participação do prefeito de Fortaleza, Evandro Leitão, do governador Elmano de Freitas e do presidente do Banco, Aloizio Mercadante.

De forma geral, conforme a Secretaria Municipal de Infraestrutura (Seinf), os projetos abrangem melhorias da infraestrutura viária, com pavimentação de ruas em terra batida e captação adequada de águas pluviais através de bocas de lobo, sarjetas e galerias subterrâneas, para evitar alagamentos.

Veja também

O prefeito Evandro Leitão ressaltou que praticamente todas as 12 regionais da capital estão sendo contempladas com drenagens e pavimentação – um combo que precisa estar junto para prevenir problemas urbanos, especialmente em áreas de risco.

“Essa operação de crédito vem no sentido de que a gente possa dar uma maior visibilidade a espaços, a regiões, a áreas que até então o poder público não conseguia enxergar”, reconheceu o gestor durante o evento.

Aloizio Mercadante reforçou que é a macrodrenagem da cidade que “protege as casas dos mais vulneráveis”, que correspondem a cerca de 47% da população da cidade, e “pavimentar de forma consistente e duradoura para melhorar a qualidade de vida”. 

Projeto em 3D de um complexo de lazer verde com campo de futebol sintético, áreas ajardinadas e um deck de madeira à beira d'água, na Lagoa da Libânia em Fortaleza.
Legenda: Projeto da Seinf para a Lagoa da Libânia, no bairro Mondubim.
Foto: Seinf/Prefeitura de Fortaleza.

A lista de espaços a serem requalificados com drenagem e nova pavimentação inclui:

  1. Poligonal Presidente Costa e Silva, no bairro José Walter, entre a Av. Presidente Costa e Silva e a R. José Matias dos Santos
  2. Poligonal Comunidade do Gereba, no Passaré, entre a Av. Presidente Costa e Silva, Estrada do Itaperi, Av. Parque do Cocó e Rua A
  3. Poligonal Comunidade São Francisco, no Jangurussu, entre a Av. Presidente Costa e Silva, Rua Maria Elisângela e Rua Pompílio Gomes
  4. Poligonal Comunidade Ana Beatriz, no Passaré, entre a Av. Presidente Costa e Silva, R. 109, Av. Governador Leonel Brizola e Rua 117
  5. Poligonal Comunidade Vila Velha, no bairro de mesmo nome, entre as Ruas Arthur Borges, Nova Esperança e Raimundo Cunha e Av. José Moreira Rebouças
  6. Rua Raimundo Cunha, no Vila Velha, entre a Av. Machado de Assis e a Rua Arthur Borges
  7. Poligonal Comunidade Inferninho, no Vila Velha, entre a Rua Pedro Sampaio e a Av. Major Assis
  8. Rua Quixadá Felício, no Vila Velha, entre a Rua 25 e a Rua 10
  9. Poligonal Planalto Ayrton Senna - Setor 1, no bairro de mesmo nome, entre as Ruas do Sol, Beira Rio, Boa Hora e Trindade
  10. Poligonal Planalto Ayrton Senna - Setor 3, no bairro de mesmo nome, entre as Ruas Bernardo Manuel, Cel de Queiroz e Retiro da Felicidade
  11. Poligonal Comunidade Malvina, no Mondubim, entre as Ruas Santa Maria Goreth, IV, Baixa do Mangue, Semente Coité e Av. Mozart Pinheiro de Lucena
  12. Poligonal Comunidade Curva da Viúva, no José Walter, entre as Avenidas João de Araújo Lima, O, J e Rua Renato Câmara
  13. Poligonal Comunidade Rosalina, no Parque Dois Irmãos, entre as Ruas Primavera, 16, do Matadouro e 101
  14. Poligonal Comunidade Guarani Sumaré, no Passaré, entre as Avenidas do Passaré, Moura Matos e da Saudade
  15. Poligonal Lagamar 1, no Alto da Balança, entre as Ruas do Piloto, José Buson, Capitão Olavo e Souza Pinto
  16. Poligonal Caça e Pesca - Setor 1, no Vicente Pinzon, entre as vias Av. Dioguinho, Tv. Maia, Tv. José Cláudio, Rua C. Marcelo Teixeira, Rua Ipameri e Rua Francisco Delgado Perdigão
  17. Poligonal Caça e Pesca - Setor 2, no Vicente Pinzon, entre as vias Av. Dioguinho, Rua Monteiro, Tv. Francisco Lima, Tv. Regina Cavalcante, Tv. Marcelo Baldez e Rua Livreiro Polary Maia
  18. Poligonal Caça e Pesca - Setor 3, no Vicente Pinzon, entre as vias Av. Dioguinho, Estrada do Cajueiro, Rua Jamaica e Tv. Cícero Carvalho
  19. Rua Castro Alencar, no Jardim das Oliveiras, entre as Ruas Baraúna, Rua Plácido Coelho Jr. e Pe. Francisco Pita
  20. Poligonal Comunidade Tasso Jereissati, no Jardim das Oliveiras, entre as vias Rua Pe. Francisco Pita, Av. Um, Rua Engenheiro Nereu Barreira e Rua 1
  21. Poligonal Comunidade São Lucas, no Mondubim, entre as Ruas Nilo Firmeza, IV Pl. Mondubim, da Paz, H, Guilhermina Rocha e São Lucas

Outra novidade é a requalificação de uma ponte no bairro Sabiaguaba, entre a Rua Sabiaguaba e Av. Manuel de Castro. Segundo a Prefeitura, a intervenção tem como objetivo melhorar a infraestrutura de pavimentação e drenagem, e facilitar o acesso a essa região. 

A área total de intervenção é de 15.523,74 m² e prevê pavimentação em intertravado, passeios acessíveis e inclusivos, terraplanagem e drenagem. O valor total estimado é de R$15 milhões.

Segundo Leitão, a ideia é assinar o contrato com o BNDES nos próximos 30 dias e, até o início de março, dar seguimento às obras.

Obras em lagoas

Além das mudanças na pavimentação, o pacote de intervenções inclui a urbanização das Lagoas da Paupina, Libânia e Maraponga.

O diagnóstico da Lagoa da Paupina identificou falta de manutenção, mobiliário e iluminação no local, havendo necessidade de preservar a vegetação nativa e valorizar o patrimônio histórico. Conforme a Prefeitura, o projeto busca reduzir os “impactos da ocupação desordenada” e criar espaços de lazer e esporte.

A urbanização contará com ampliação da arborização, melhorias da pavimentação, mobiliário urbano, acessibilidade, espaços de convívio social, ambientes integrativos e áreas esportivas.

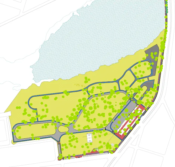
Já na Maraponga, a “ausência de equipamentos de lazer agrava o abandono e a desvalorização da área”, aponta a gestão. A requalificação tenta resolver problemas de degradação do espaço, falta de infraestrutura, pavimentação precária, drenagem ineficiente e iluminação insuficiente

A intervenção na área contará com requalificação das vias e passeios com trocas de revestimentos, instalação de mobiliário urbano e acessibilidade universal.

Visualização aérea esquemática da Lagoa da Maraponga, mostrando a distribuição de vegetação, trilhas sinuosas, estacionamentos e estruturas construídas próximas a uma costa ou lago.
Legenda: Projeto de urbanização da Lagoa da Maraponga.
Foto: Seinf/Prefeitura de Fortaleza.

A Lagoa da Libânia, no Mondubim, também sofre com impactos negativos gerados pela ocupação desordenada. Por isso, a premissa é “promover a sensação de pertencimento da lagoa à população de Fortaleza”.

Na área, o projeto terá requalificação das vias e passeios com trocas de revestimentos; instalação de mobiliário urbano; acessibilidade universal; espaços de convívio social; ambientes integrativos e areninha.

Nova rede de esgoto

O governador Elmano de Freitas determinou ainda que a parceria público-privada entre a Companhia de Água e Esgoto do Ceará (Cagece) e a empresa Ambiental Ceará também realizem o esgotamento sanitário, caso uma região não seja coberta, durante as obras da Prefeitura.

A unificação do processo deve poupar recursos públicos ao evitar que as vias sejam reabertas para novas obras. “Façamos juntas a rede de drenagem e a rede de esgoto. Com isso, o nosso povo nem pisa na lama e sai da situação de insalubridade, de ter o esgoto a céu aberto”, declarou.

Newsletter

Escolha suas newsletters favoritas e mantenha-se informado
Este conteúdo é útil para você?
Assuntos Relacionados